CONTACTE-NOS
EN FR DE
CONTACTE-NOS
BEM-VINDO

Propriedade A01





CAVE
100 m2

1. Arrumos · 50 m2
2. Arrumos · 18.4 m2
3. Arrumos · 1.9 m2
4. Arrumos · 2 m2
5. Lavandaria · 6.6 m2






CAVE
100 m2

1. Arrumos · 50 m2
2. Arrumos · 18.4 m2
3. Arrumos · 1.9 m2
4. Arrumos · 2 m2
5. Lavandaria · 6.6 m2
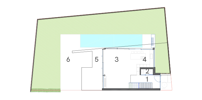
PISO 0
75.1 m2

1. Entrada · 9.3 m2
2. WC · 2.5 m2
3. Sala comum · 32.5 m2
4. Cozinha · 16.7 m2
5. Terraço · 30.5 m2
6. Terraço · 32.5 m2






PISO 0
75.1 m2

1. Entrada · 9.3 m2
2. WC · 2.5 m2
3. Sala comum · 32.5 m2
4. Cozinha · 16.7 m2
5. Terraço · 30.5 m2
6. Terraço · 32.5 m2
PISO 1
94.9 m2

1. Corredor · 6.4 m2
2. Quarto 1· 13.5 m2
3. Terraço · 6.9 m2
4. Quarto 2 · 15.5 m2
5. Quarto 3 · 18.1 m2
6. Terraço · 5.6 m2






PISO 1
94.9 m2

1. Corredor · 6.4 m2
2. Quarto 1· 13.5 m2
3. Terraço · 6.9 m2
4. Quarto 2 · 15.5 m2
5. Quarto 3 · 18.1 m2
6. Terraço · 5.6 m2
COBERTURA
55 m2






COBERTURA
55 m2




Características das propriedades


e



Acerca
São aplicados em todas as propriedades azulejo italiano da Emilgroup, esta é uma das empresas líderes na indústria de superfícies de cerâmica desde 1961.Eles fornecem soluções arquitectónicas que atendem ás necessidades da vida contemporânea.Revestimentos de pisos e paredes com um design elegante,requintado e moderno.

Benefícios
Resistente a manchas e produtos químicos.
Excelente resistência mecânica.
Superficie resistente a riscos
Resistente ao frio e choques térmicos
UV colour-fastness
Resistente ao fogo


www.emilgroup.it/en


Materiais fornecidos pela Megabox

www.megabox.pt/en





Acerca
A Holland Aqua Sight com sede nos Países Baixos é uma empresa especializada em todos os tipos de janelas subaquáticas.Utilizam apenas PLEXIGLAS® considerado um dos plásticos mais preciosos e versáteis do mundo.Esta solução está presente em muitos objetos do dia a dia, como a construção de aeronaves e janelas de cabine de aeronaves para monitores e displays, como envidraçamento estrutural, barreiras acústicas ou publicidade.

Benefícios
Tem metade do peso do vidro, mas é mais forte. Não vai partir ou rachar como vidro. Completamente personalizável em tamanho e espessura do painel, dependendo dos requisitos. Fácil de limpar. Não transmite condensação ou humidade .Sem amarelecimento ou nebulosidade, proporciona uma visão cristalina como vidro.


www.hollandaquasight.com/en/






Acerca
Todos os acessórios para as casas de banho são da empresa italiana Bongio fundada em 1936. Desde seu início, a empresa escolheu seguir um caminho de inovação, qualidade e design que formou seu ADN criativo, combinando funcionalidade, estilo, tecnologia e um cuidado artesanal para detalhes.

Benefícios
Garantia de 10 anos, todos os produtos são cuidadosamente fabricados com os melhores materiais italianos, incluindo latão de baixa liga certificado, porcelana fina de primeira qualidade, vidro Murano e aço inoxidável 316. Mais vida útil, luminosidade, durabilidade, resistência e alta performance, independentemente do clima. ou localização geográfica devido a técnicas especiais de fabricação e acabamento.


www.bongio.com/en/


Materiais fornecidos pela Megabox

www.megabox.pt/en





Acerca
As cerâmicas Villeroy & Boch são usadas em todas as casas de banho. A empresa foi reconhecida como produtora de produtos inovadores e elegantes para melhorar a vida das pessoas, fornecer inspiração contínua e abrir novos horizontes para um design de interiores verdadeiramente personalizado.

Benefícios
Superfície CeramicPlus para facilitar e limpar. O material TitanCeram é usado para maior força e resistência. Esmalte duplo para criar um acabamento muito robusto e durável. Sanitários que economizam água e são ecologicamente corretos.


www.villeroy-boch.co.uk


Materiais fornecidos pela Megabox

www.megabox.pt/en





Acerca
Silestone é um composto composto de 90% de quartzo natural, o que o torna extraordinariamente duro e resistente. É uma excelente superfície para bancadas de cozinha, banheiros, pisos e revestimento de paredes usando o número mínimo de juntas.

Benefícios
25 anos de garantia Resistente a manchas,Resistente a ácidos, impacto e riscos.



www.silestone.com


Materiais fornecidos pela Megabox

www.megabox.pt/en





Acerca
Soluções para tornar a abertura e o fecho de móveis uma experiência fascinante e oferecer qualidade de movimento e maior conveniência do usuário para toda a casa. Em particular para cozinhas. A gama de produtos Blum é complementada por serviços de suporte.

Benefícios
Fecho suave de gavetas e portas. Móveis sem puxadores.


www.blum.com


Materiais fornecidos pela Megabox

www.megabox.pt/en





Acerca
Os produtos do sistema BORA complementam as gamas de produtos para criar um sistema completo e harmonioso para soluções de recirculação e exaustão de ar. Os componentes perfeitamente alinhados oferecem um ótimo desempenho e uma garantia funcional de 100%.

Benefícios
Retire os odores e as partículas de gordura diretamente das panelas. Mais silenciosas e mais eficazes do que as placas convencionais. Limpeza fácil. Materiais de alta qualidade Sem exaustor de tecto.


www.bora.com


Materiais fornecidos pela Megabox

www.megabox.pt/en





Acerca
A Siemens é uma potência global focada nas áreas de eletrificação, automação e digitalização. Um dos maiores produtores mundiais de tecnologias que economizam recursos e economia de energia, a Siemens é fornecedora líder de sistemas para geração e transmissão de energia, bem como diagnóstico médico. Em infra-estrutura e soluções industriais, a empresa desempenha um papel pioneiro. Benefícios
Engenharia eficiente Design e operação inovadores


www.siemens-home.bsh-group.com


Materiais fornecidos pela Megabox

www.megabox.pt/en




Com característica únicas, as 14 moradia tem características que permitem o acesso seguro pela parte inferior, onde só o residente tem acesso. A porta da garagem elétrica dará acesso ao estacionamento subterrâneo. O estacionamento subterrâneo terá lugares de estacionamento, com uma porta de entrada para cada moradia. O CCTV irá também oferecer um alto nível de segurança.


Vasco Vieira é um arquiteto internacionalmente reconhecido, tendo projetado muitas Moradias premiadas no Algarve. As qualidades dos seus designs são reconhecidas em todo o mundo, podemos observar o seu trabalho em países como, Londres / Paris / Rússia / Canadá / EUA (Miami)


O design de interiores da Fonte Algarve Residences está a cargo da Quinta Style, que oferece soluções de design para todas as partes da casa, incluindo: cozinhas e casas de banho, espaços exteriores, interiores e acabamentos, móveis à medida e soluções de decoração.





Entre em contato para saber mais